| 材質 | 發泡水泥 |
|---|---|
| 產地 | 北京、河北 |
| 類別 | 輕質隔墻板 |
| 顏色 | 灰白 |
| 種類 | 聚苯顆粒水泥夾芯復合條板內隔墻 |
| 品牌 | 景濤藝順 |
| 型號 | 168 |
聚苯顆粒水泥夾芯復合條板內隔墻說明
1簡介
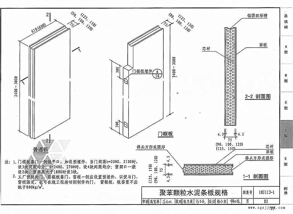
聚苯顆粒水泥夾芯復合條板內隔墻(D型),簡稱聚苯顆粒水泥條板內隔墻,輕質條板為復合實心,是采用纖維水泥平板或纖維增強硅酸鈣板等作為面板與夾芯層材料復合制成,板內芯為聚苯顆粒和水泥。面板一般采用纖維水泥平板,纖維增強硅酸鈣板、玻鎂平板、石膏平板等。
2聚苯顆粒水泥條板常用規格,主要技術性能指標(見表1)
3聚苯顆粒水泥條板內隔墻主要技術性能指標(見表2)
4設計說明
4.1選用的條板為常用規格,設計可根據工程需要選用其他規格條板。
4.2預制的門、窗框板靠門、窗框一側應設置鋼預埋件或木磚,以便與門、窗框固定。也可在施工現場切割制作門、窗框板,單條板的容重不應低于800kg/m3,可采用膨脹螺栓與門、窗框固定。應根據門窗洞口大小確定固定位置和螺栓數量,每側的固定點應少于3處,必須滿足設計要求。同事應加裝門套,采取加強措施。
4.3安裝隔墻選用的配套材料應滿足設計要求并提供使用說明書及檢測報告。
4.4安裝隔墻采用粘接材料性能見附錄。1“粘接劑用于板與板,板與主體結構的粘接。2“粘接劑用于條板吊掛件、構配件粘結和預埋件補平、修復。





復合墻板 輕質隔墻板 隔墻板://b2b.hc360.com/supplyself/766312069.html

